2026³â01¿ù12ÀÏmon
·Î±×ÀÎ | ȸ¿ø°¡ÀÔ
OFF
Æ®À§ÅÍ·Î º¸³»±â ½ÎÀÌ¿ùµå °ø°¨
±â»ç±ÛÈ®´ë ±â»ç±ÛÃà¼Ò ±â»ç½ºÅ©·¦ À̸ÞÀϹ®ÀÇ ÇÁ¸°Æ®Çϱâ
¿øÀÚ·Â, ¿Ü·¡ Àü¸é ¸®¸ðµ¨¸µ¡¤¡¤¡¤¡®À¯¹æ¾Ï¼¾ÅÍ' ÀüÁø ¹èÄ¡
26¾ï¿ø ÅõÀÔ ÇöÀç ¼³°è ±¸»ó ÁøÇà, ±Ý³â³» Âø°ø ¸ñÇ¥
[ 2017³â 08¿ù 29ÀÏ 06½Ã 08ºÐ ]

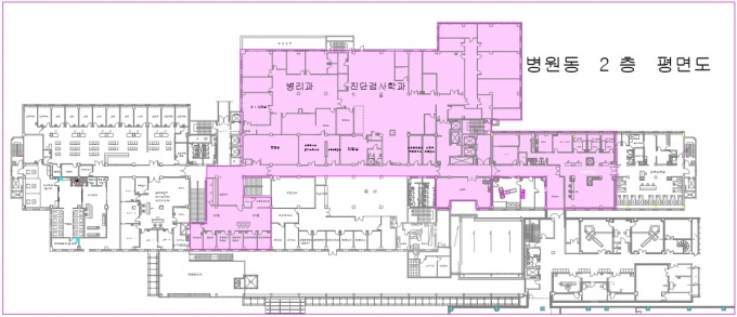
Çѱ¹¿øÀÚ·ÂÀÇÇпø ¿øÀڷº´¿øÀÌ È¯ÀÚ Á¢±Ù¼º°ú µ¿¼±À» °í·ÁÇÑ ¿Ü·¡ ¸®¸ðµ¨¸µÀ» ÃßÁøÇÑ´Ù. ƯÈ÷ º´¿øÀÇ °­Á¡À¸·Î ²ÅÈ÷´Â À¯¹æ¾Ï¼¾Å͸¦ º»°ü 2Ãþ Áß¾Ó¿¡ ¹èÄ¡ÇÏ´Â µî º¯È­°¡ »ý±æ °ÍÀ¸·Î º¸ÀδÙ. 

28ÀÏ ¿øÀڷº´¿ø¿¡ µû¸£¸é º»°ü Áö»ó1, 2ÃþÀÇ ÀϺΠ°ø°£À» È¿À²ÀûÀ¸·Î Ȱ¿ëÇϱâ À§ÇØ ¸®¸ðµ¨¸µÀ» °áÁ¤ÇÑ »óÅ·Π¾à 2°³¿ù°£ ¼³°è¸¦ ¸¶Ä¡°í ¿ÃÇØ ¾ÈÀ¸·Î Âø°ø¿¡ µé¾î°¡°Ú´Ù´Â ¹æÄ§À» ¼¼¿ü´Ù. »ç¾÷ºñ´Â 26¾ï¿ø ±Ô¸ð´Ù. 

À̹ø ¸®¸ðµ¨¸µ »ç¾÷ÀÇ ÇÙ½ÉÀº À¯¹æ¾Ï¼¾ÅÍÀÇ ÀüÁø ¹èÄ¡´Ù.



½ÇÁ¦ ¿øÀڷº´¿øÀº À¯¹æ¾Ï ¸íÀÇ·Î ¾Ë·ÁÁø ³ë¿ìö º´¿øÀå µîÀÇ ¿ªÇÒ·Î ÀÎÇØ À¯¹æ¾Ï Ä¡·á ¹× ¼ö¼úÀÌ ¸¹ÀÌ ½ÃÇàµÇ°í ÀÖ¾î À̸¦ °­Á¶ÇÏ´Â ÇüÅ·Π±¸Á¶¸¦ º¯°æÇØ¾ß ÇÑ´Ù´Â ÀǰßÀÌ ³»ºÎÀûÀ¸·Î Á¦½ÃµÈ ¹Ù ÀÖ´Ù.


ÇöÀç À¯¹æ¾Ï¼¾ÅÍ´Â º»°ü 2Ãþ ¿À¸¥ÂÊ ³¡¿¡ À§Ä¡ÇÑ »óÅÂÀε¥, º´¸®°ú¿Í Áø´Ü°Ë»çÇаú°¡ ÀÚ¸®Àâ¾Ò´ø 2ÃþÀÇ Á߾ӺηΠÀÌÀüÇÏ°Ô µÈ´Ù.


º´¸®°ú¿Í Áø´Ü°Ë»çÇаú´Â Áö³­ÇØ 3ÃþÀ¸·Î ÀÚ¸®¸¦ ¿Å°å°í ÇöÀç´Â ºó °ø°£ÀÌ´Ù. ¿©±â¿¡ À¯¹æ¾Ï¼¾Å͸¦ ¹èÄ¡½ÃŰ¸é¼­ È®ÀåÇϸé ȯÀÚ ¹× ³»¿ø°´µéÀÇ µ¿¼±°ú Ä¡·á °ø°£ È®º¸°¡ ¼ö¿ùÇØ Áú °ÍÀ̶ó´Â °üÃøÀÌ´Ù. 


¶ÇÇÑ À¯¹æ¾Ï¼¾ÅÍ ¹Ù·Î ¿·¿¡ À§Ä¡ÇÑ Àΰø½ÅÀå½Çµµ È®ÀåÀ» ¿°µÎ¿¡ µÎ°í ÀÖÀ¸¸ç Á¤Çü¿Ü°ú, ¼Ò¾Æ°úÀÇ Àç¹èÄ¡µµ °í·Á ÁßÀÎ °ÍÀ¸·Î È®ÀεƴÙ.


Á¤Çü¿Ü°ú´Â 1Ãþ¿¡ ÀÖ´Â ¹°¸®Ä¡·á½ÇÀ» ÇÕÄ¡´Â ÇüÅ·ΠÁ¶À²µÆ°í ÀÀ±Þ½Ç È®Àåµµ µ¿½Ã¿¡ ÀÌ·ïÁú °ÍÀ¸·Î ¿¹»óµÈ´Ù. 


¿øÀڷº´¿ø °ü°èÀÚ´Â “ÇöÀç ºñ¾îÀÖ´Â 2Ãþ Áß¾ÓÀÇ º´¸®°ú¿Í Áø´Ü°Ë»çÇаú ÀÚ¸®¿¡ À¯¹æ¾Ï¼¾ÅͰ¡ ÀÌÀüÇÏ´Â ¹æÇâÀ» Á¤ÇÏ°í ¼³°è¿ë¿ªÀ» Áغñ Áß¿¡ ÀÖ´Ù”°í ¼³¸íÇß´Ù.


ÀÌ¾î “2°³¿ùÀÇ ¼³°è°¡ ¸¶¹«¸®µÇ¸é °ð¹Ù·Î ¸®¸ðµ¨¸µ¿¡ µé¾î°¥ °ÍÀÌ´Ù. 11¿ù Âø°øÀ» ¸ñÇ¥·Î °èȹÀ» Àâ°í ÀÖÁö¸¸ È®´äÀº ¾î·Á¿î »óÅ´Ù. ¿ÃÇØ ¾ÈÀ¸·Î Âø°øÇÏ´Â °ÍÀ» ¿°µÎ¿¡ µÎ°í »ç¾÷À» ÃßÁøÇϰí ÀÖ´Ù”°í ¾ð±ÞÇß´Ù.


ÀÌ °ü°èÀÚ´Â “2ÃþÀ» Áß½ÉÀ¸·Î ¾à 3300§³ÀÇ ¸®¸ðµ¨¸µÀÌ ÀÌ·ïÁø´Ù. ¾ÈÁ¤°¨ÀÖ´Â º´¿ø °ø°£À» È®º¸ÇØ È¯ÀÚ ¹× º¸È£ÀÚÀÇ ¸¸Á·µµ¸¦ ¿Ã¸± ¼ö ¹æÇâÀ¸·Î °ø»ç°¡ ÁøÇàµÉ °Í”À̶ó°í ¹àÇû´Ù.


ÇÑÆí, ¿øÀڷº´¿øÀº ¸®¸ðµ¨¸µ »ç¾÷°ú ÇÔ²² °£È£°£º´ÅëÇÕ¼­ºñ½º º´µ¿ ±¸Ã൵ ÁøÇàÇÑ´Ù. ¿À´Ã(29ÀÏ) °è¾à°ú µ¿½Ã¿¡ ¾à 45Àϰ£ °ø»ç°¡ ÁøÇàµÇ¸ç 43º´»óÀÇ °£È£°£º´ÅëÇÕ¼­ºñ½º º´µ¿ÀÌ ¸¸µé¾îÁø´Ù. 

¹Ú±Ùºó±âÀÚ ray@dailymedi.com
À̱âÀÚÀÇ ´Ù¸¥´º½ºº¸±â
¹«ÅëÀåÀÔ±Ý Á¤º¸ÀÔ·Â ÀÔ±ÝÀÚ¸í ÀԱݿ¹Á¤ÀÏÀÚ
(ÀÔ±ÝÇÏ½Ç ÀÔ±ÝÀÚ¸í + ÀԱݿ¹Á¤ÀÏÀÚ¸¦ ÀÔ·ÂÇϼ¼¿ä)
[°ü·Ã´º½º]
- °ü·Ã´º½º°¡ ¾ø½À´Ï´Ù.
Æ®À§ÅÍ·Î º¸³»±â ½ÎÀÌ¿ùµå °ø°¨
±â»ç±ÛÈ®´ë ±â»ç±ÛÃà¼Ò ±â»ç½ºÅ©·¦ À̸ÞÀϹ®ÀÇ ÇÁ¸°Æ®Çϱâ
¸íÁöº´¿ø, ͺ À̰ÇÈñ ȸÀå ÁÖÄ¡ÀÇ À̰­¿ì ±³¼ö(»ï¼º¼­¿ïº´¿ø ÀçȰÀÇÇаú) ¿µÀÔ
´ëÀü¼º¸ðº´¿ø ±èµ¿±â¡¤À̵¿Ã¢ ±³¼ö, ´ëÇÑÀ̺ñÀÎÈİúÇÐȸ ÃÖ¿ì¼ö ±¸¿¬»ó¡¤ÃÖ¿ì¼ö Æ÷½ºÅÍ»ó
Á¶Àç¿ì ±³¼ö(°í´ë±¸·Îº´¿ø Á¤Çü¿Ü°ú), ´ëÇѰñÀýÇÐȸ ÃÖ´Ù³í¹®»ó
´ëÇÑÀÇ»çÇùȸ ºÎȸÀå ¹éÇö¿í¡¤Àǹ«ÀÌ»ç ¿Àµ¿È£¡¤Á¤º¸Åë½ÅÀÌ»ç À¯¼Ò¿µèâ
Çѱ¹Á¦¾à¹ÙÀÌ¿ÀÇùȸ ÀǾàǰ±¤°í½ÉÀÇÀ§¿øÈ¸ À§¿øÀå ±è¼ºÁø¡¤ºÎÀ§¿øÀå ÀÌÁØÈñ¡¤ÀåÃá°ï èâ
¹è±â¼ö ±³¼ö(¾ÆÁִ뺴¿ø ¼Ò¾ÆÃ»¼Ò³â°ú), Á¦100ȸ ¾î¸°À̳¯ ¿ÁÁ¶±ÙÁ¤ÈÆÀå
À̺´ÈÆ¡¤½ÉÀç¾Ó ±³¼öÆÀ(±æº´¿ø Á¤Çü¿Ü°ú), ´ëÇѰñÀýÇÐȸ ¿ÃÇØ ¿ì¼ö ±¸¿¬»ó
³²°¡Àº ±³¼ö(°í´ë±¸·Îº´¿ø °¡Á¤ÀÇÇаú), Çѱ¹¿©ÀÚÀÇ»çȸ Á¦4ȸ ÀþÀºÀÇÇÐÀÚ Çмú»ó
±¹¸³Áß¾ÓÀÇ·á¿ø Áß¾ÓÀÀ±ÞÀÇ·á¼¾ÅÍÀå ±è¼ºÁß(Á¶¼±´ëº´¿ø ÀÀ±ÞÀÇÇаú ±³¼ö)
ÃÖÁ¤¿õ ¿µ°æÀÇ·áÀç´Ü ÀüÁÖº´¿ø ÀÌ»çÀå, ¾Æµ¿º¸È£»ç¾÷ ±â±Ý 4000¸¸¿ø
±è¿µÁÖ ±³¼ö(ÀÌ´ë¸ñµ¿º´¿ø »êºÎÀΰú), Á¦13ȸ Çѵ¶¿©ÀÇ»çÇмú´ë»ó
¹ÚÂùÈì ±³¼ö(ÇѸ²´ëÃáõ¼º½Éº´¿ø À̺ñÀÎÈİú), ´ëÇÑÀ̺ñÀÎÈİúÇÐȸ Çмú»ó
Á¶¼öÁø ±³¼ö(ÇѸ²´ëµ¿Åº¼º½Éº´¿ø ½Å°æ°ú), Á¦26ȸ JWÁß¿ÜÇмú´ë»ó
¼­Á¤°Ç ¿¬¼¼¼­³»°ú ¿øÀå ÀåÀλó